Проект дома ОД13-185-167
Подробная информация
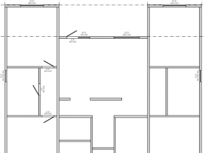
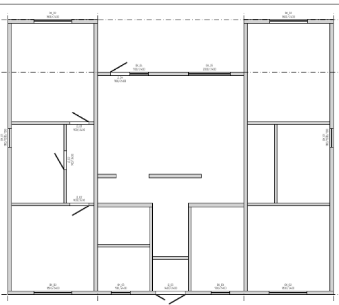
Общая площадь: 167 м2
Этажей: 1
Количество комнат: 4
от 7030000 руб.
Входит: свайное поле, обвязка, теплый контур (стены, перекрытия нижние, верхние, межкомнатные стены, стропильная система, кровля, окна двери).
от 8725000 руб.
Входит: Дом под ключ, свайное поле, обвязка, теплый контур, фасад, софиты, цоколь, облицовка окон, септик, скважина до 25 метров, ввод эл. энергии, ввод воды, ввод в дом канализации.
Планировки
Оставить заявку на проект
Наши партнеры:











